Nordblick Apartments
Nordblick Apartments
2023, Munich
Altogether, the scheme provides 161 homes, all connected by a shared underground car park and surrounded by green open space. A natural pond forms the heart of the site, while dense woodland defines the northern boundary — setting up a dialogue between nature and urban living.
Altogether, the scheme provides 161 homes, all connected by a shared underground car park and surrounded by green open space. A natural pond forms the heart of the site, while dense woodland defines the northern boundary — setting up a dialogue between nature and urban living.

Reimagining Industrial Ground
Reimagining Industrial Ground




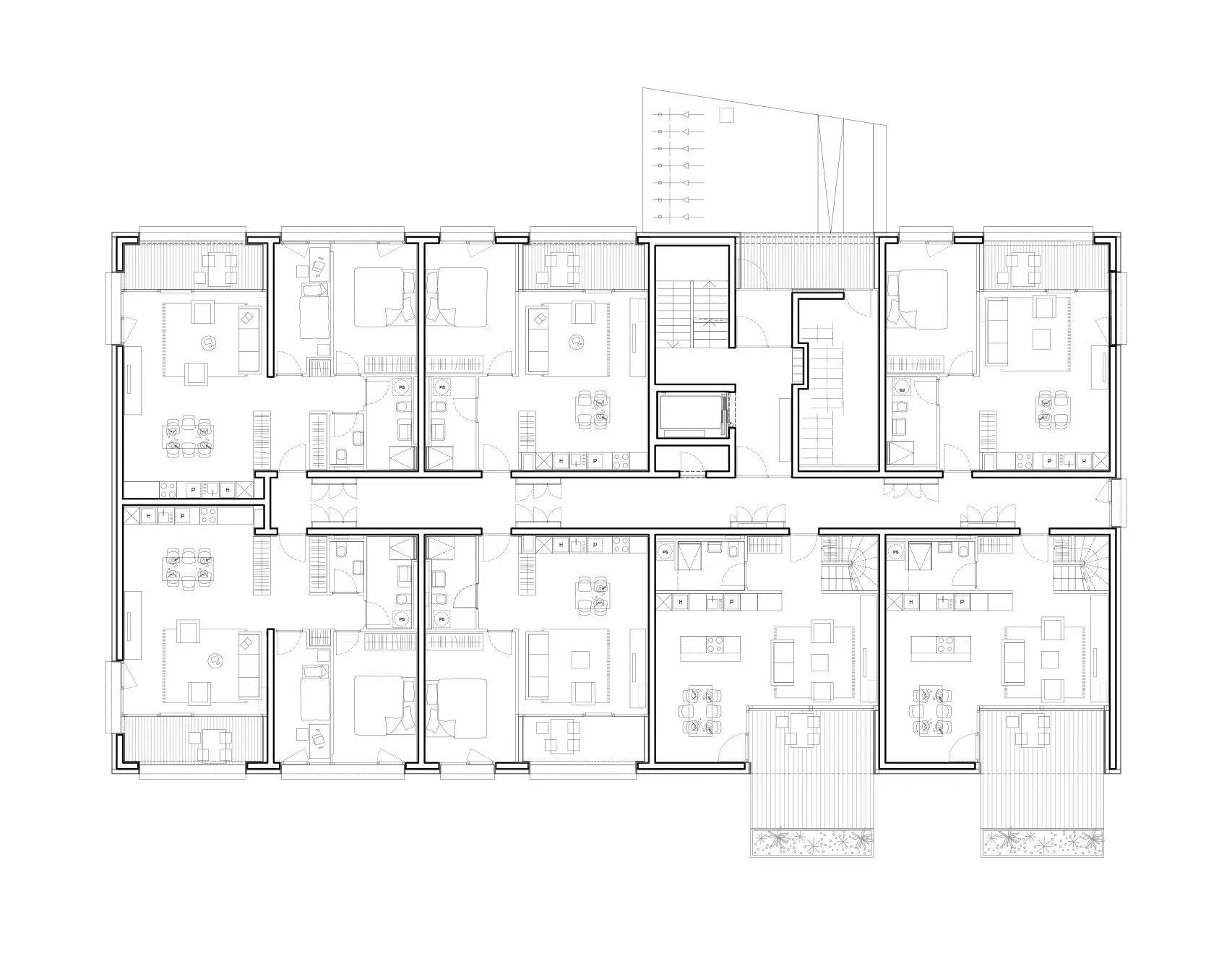
The Nordlick Apartments occupy a former industrial site on the outskirts of Munich, where an old brickworks once stood beside a quiet lake. The development transforms the disused area into a contemporary residential quarter made up of six linear buildings — arranged in two rows of three, following a southwest to northeast orientation, with each block slightly offset to soften the composition. The architectural concept focuses on blending built form with landscape. Each façade is finished in a gradient of green tones that deepen towards the trees, allowing the buildings to visually dissolve into their surroundings.
The Nordlick Apartments occupy a former industrial site on the outskirts of Munich, where an old brickworks once stood beside a quiet lake. The development transforms the disused area into a contemporary residential quarter made up of six linear buildings — arranged in two rows of three, following a southwest to northeast orientation, with each block slightly offset to soften the composition. The architectural concept focuses on blending built form with landscape. Each façade is finished in a gradient of green tones that deepen towards the trees, allowing the buildings to visually dissolve into their surroundings.


Six linear blocks arranged in rhythmic offset that create both order and movement
Six linear blocks arranged in rhythmic offset that create both order and movement


A dialogue of geometry and greenery
A dialogue of geometry and greenery
Inside, every block follows a clear and functional layout: apartments line both façades, connected by a central corridor. Variations within this structure introduce unique living experiences — duplex homes with private gardens at ground level, terrace apartments with large outdoor areas above, and senior-friendly units positioned at the lower levels facing the water. The external character is minimalist yet tactile, defined by rough-textured cladding, deep horizontal eaves, and generous corner windows that open the interiors to light and views. Timber detailing and extensive glazing mark out the duplex and terrace units, giving the overall composition warmth and variation.
Inside, every block follows a clear and functional layout: apartments line both façades, connected by a central corridor. Variations within this structure introduce unique living experiences — duplex homes with private gardens at ground level, terrace apartments with large outdoor areas above, and senior-friendly units positioned at the lower levels facing the water. The external character is minimalist yet tactile, defined by rough-textured cladding, deep horizontal eaves, and generous corner windows that open the interiors to light and views. Timber detailing and extensive glazing mark out the duplex and terrace units, giving the overall composition warmth and variation.




Veiro Studio,
42 Vesterbrogade,
Vesterbro,
Copenhagen,
1620, Denmark
Copyright @ VEIRO 2025
Privacy policy
Terms & conditions
Veiro Studio,
42 Vesterbrogade,
Vesterbro,
Copenhagen,
1620, Denmark
Copyright @ VEIRO 2025
Privacy policy

